


XXL Hebeschiebetüren
Glasschiebetüren bis 12m Breite, 3m Höhe, 400Kg je Flügel
Die neue Kolb & Appel Hebe-Schiebetürgeneration vereint einen beweglichen Monorail-Flügel mit einer festen Rahmenverglasung bei minimalsten Ansichtsbreiten für maximale Transparenz. Dank seiner filigranen und modularen Konstruktionsdetails im Neubau und in der Renovierung uneingeschränkt einsetzbar.
Vorteile der Hebe-Schiebetüren
- Große Fensterfronten können einfach verglast werden
- Barrierefreie Schiebetüren
- Hochwärmegedämmten verzugshemmndes Profil
- Umlaufende Dichtungsebenen für optimale Dichtigkeit
- Kinderleichtes öffnen bei bis zu 12m und 400 Kg Flügelgewicht
- Mit integrierter Entwässerung erhältlich (Optional)
- Einbruchshemmende Sicherheitsverglasung und RC 2 Sicherheitsbeschläge (Optional)
Hebeschiebeanlagen - Ecklösung ohne Pfosten
Die perfekte Kombination zwischen Transparenz und Wärmedämmung. Kinderleichtes öffnen und hervorragende Laufruhe. Der Softeinzug sorgt für sanftes und leichtes Schließen. Die Hebeschiebeanlage ist barrierefrei
Auf Wunsch erhalten Sie eine Außenbeschattung (wie auf dem Bild zu sehen) ebenfalls als Ecklösung.

Alle Vorteile der Glasschiebetüren auf einen Blick
Schiebetüren XXL-Anlagen
Jetzt gibt es auch Schiebetüranlagen im XXL-Format - bis zu einer Höhe von 3m und einer Breite von 12m. Das maximale Flügelgewicht beträgt 400 Kilo.

Kinderleichtes Bedienen
Das leichtgängige Schiebe-Öffnungssystem macht die Bedienung zu einem Kinderspiel. Ein Handgriff genügt und schon öffnen sich selbst große Flügeltüren mit Leichtigkeit. Bei großen und schweren Flügel hilft eine zusätzliche "Federunterstützung".

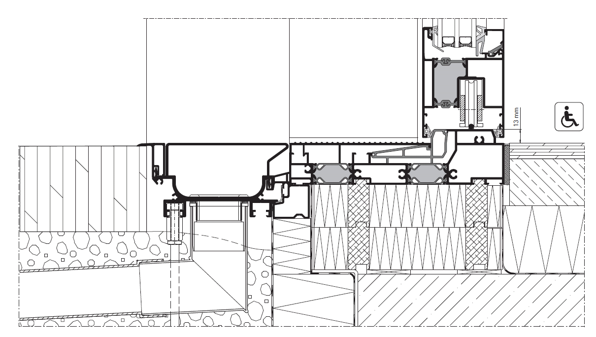
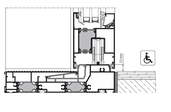
Barrierefreie Glasschiebetüren
Stolperfallen und unüberwindbare Höhenabsätze werden durch extrem flache Bodenschwellen vermieden. Die Schwellenhöhe von innen nach außen beträgt nur 13 mm, somit sind unsere Hebeschiebetüren für den Einsatz im Bereich „Barrierefreies” Bauen geeignet.
Aluminiumfenster für maximale Energieeinsparung
Die vielfältigen Möglichkeiten bei Aluminium-Fenster liegen insbesondere bei der individuellen Gestaltung, Größe sowie höchster Wärmedämmung und Sicherheit.





Um Ihnen ein individuelles Angebot zu erstellen benötigen wir:
Maße und ein aktuelles Foto des Bauvorhabens.

Aluminiumfenster aus eigener Produktion erfüllen nicht nur die Anforderungen an den Wärme- und Schallschutz, sondern tragen darüber hinaus dem individuellen Sicherheitsbedürfnis Rechnung.
- beste Wärmedämmung und Schallschutz (3-fach Verglasung)
- höchste Einbruchsicherheit, auch mit RC 2 prüfung (Optional)
- Kinderleichtes Bedienen
- individuelles Design, durch verschieden wählbare Rahmenkonturen







